Search Properties

1a, Edge Hill, Plumstead, SE18

Plumstead

£525,000

2 x 1 x
Department:
Sales
Reference:
632632_S_10611043
Postcode:
SE18 3SQ
Availability:
Sold STC
Receptions:
1

Property features

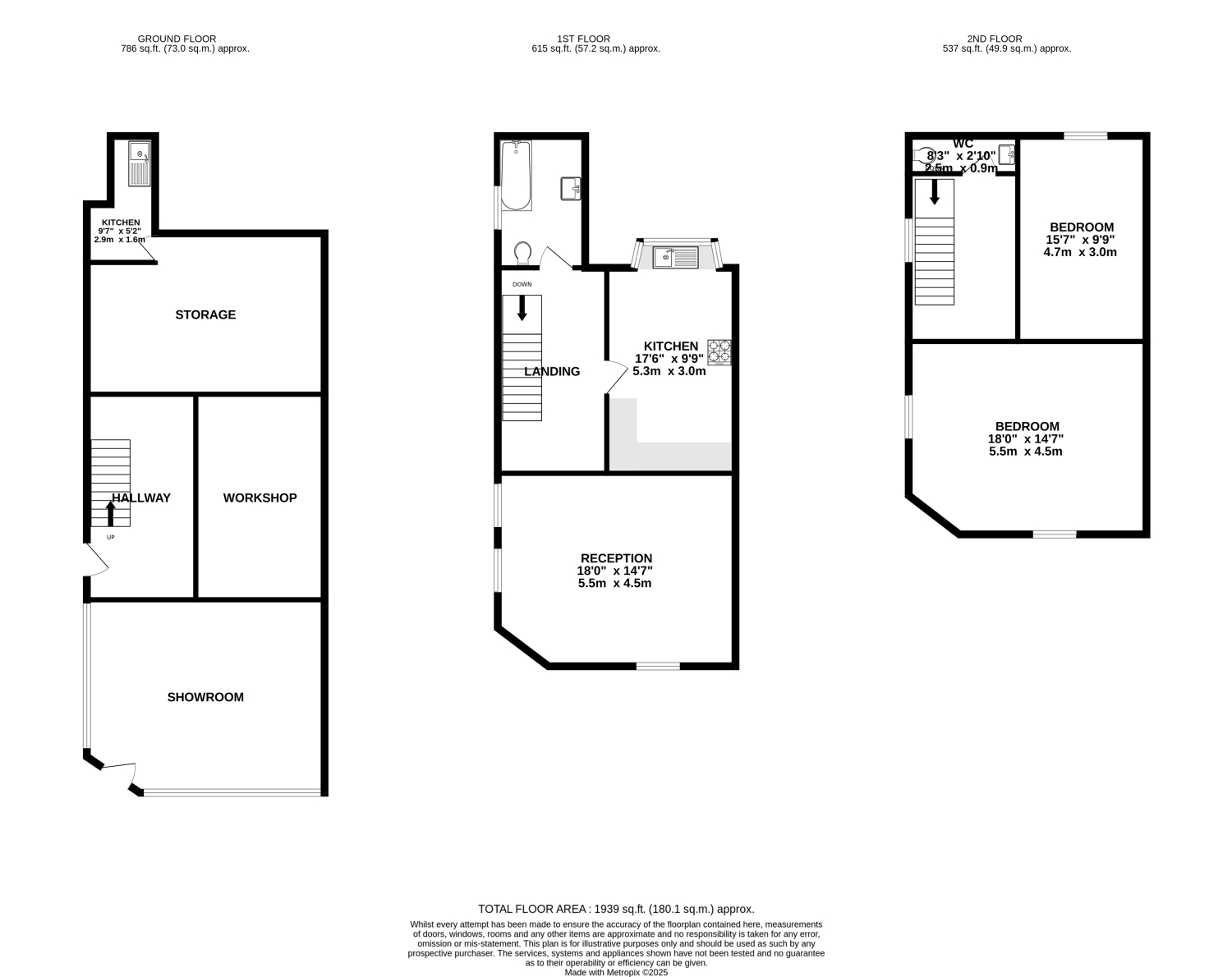
  • Freehold Victorian building over three floors
  • Ground floor commercial unit
  • Large 2-bedroom flat over upper two floors
  • Rear yard space
  • Gas central heating & double glazing
  • Walking distance to Woolwich Elizabeth Line, DLR & mainline stations
  • Excellent development potential (STPP)
  • Close to Herbert Road amenities

Summary

Hi Residential are pleased to present this spacious and versatile Victorian property arranged over three floors, offering both residential and commercial accommodation with significant development potential (STPP).

Details

Hi Residential are pleased to present this spacious and versatile Victorian property arranged over three floors, offering both residential and commercial accommodation with significant development potential (STPP).
The ground floor comprises a well-proportioned retail unit with excellent street frontage, while the upper floors host a large two-bedroom split-level flat, accessed separately. The entire property is in good condition throughout and benefits from double glazing, gas central heating, and a private yard to the rear.
This freehold opportunity presents exceptional scope for investors or developers. Subject to the necessary planning permissions, there is potential to extend to the rear with a double-storey addition and convert the ground floor retail unit into a residential dwelling—potentially transforming the building into three self-contained units.
Ideally located just a short walk from Woolwich town centre, with Elizabeth Line, DLR and mainline rail services, and only minutes from the local shopping amenities of Herbert Road, this property combines convenience, character, and long-term potential in a high-demand area.
Key Features:
Freehold Victorian building over three floors
Ground floor commercial unit
Large 2-bedroom flat over upper two floors
Rear yard space
Gas central heating & double glazing
Excellent development potential (STPP)
Walking distance to Woolwich Elizabeth Line, DLR & mainline stations
Close to Herbert Road amenities
This is an excellent opportunity for both seasoned developers and buy-to-let investors. Contact Hi Residential today for further details or to arrange a viewing.

Floor Plans

EPC

Request Further Details

Or arrange a viewing

Recent Blog Posts

Latest news and updates

Small Gestures, Big Impact: It’s Random Acts of Kindness Day 9th April Uncategorised

Small Gestures, Big Impact: It’s Random Acts of Kindness Day

Small Gestures, Big Impact: It’s Random Acts of Kindness Day Random Acts of Kindness Day is this Saturday 17th February.…

Read More
What You Should Know before You and Your Partner Live Together 9th April Uncategorised

What You Should Know before You and Your Partner Live Together

What You Should Know before You and Your Partner Live Together  If talk between you and your partner this Valentine’s…

Read More